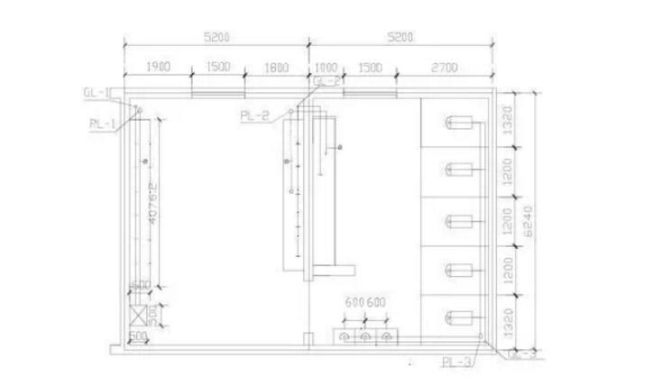
如图所示为某五层集体宿舍卫生间平面图,此卫生间设有盥洗房和厕所,在盥洗房中的两边设有两个盥洗槽,分别有6个水龙头和1个污水盆,2个地漏;厕所中设有5个蹲便器,1个小便槽。3个洗手盆,1个地漏,给水管道用镀锌钢管,排水管用PVC塑料管。
如图所示卫生间:

给水系统图,设有3根立管,3段铺设管和1根入户管,各段管径如图所示。

【解】(1)给水系统工程量
1)管道
①DN20:[1.2(蹲便器冲洗管长度)×5+2.4(GL-3至洗脸盆距离)+0.6(洗脸盆宽)×2+0.3(半个洗脸盆宽)+(1.0+0.4)(污水盆至水龙头管段水平长度和上升段长度)]×5m=56.5m
②DN25:[1.2(蹲便器间距)×4+0.6(半个蹲便器宽度)+0.24(小便槽过墙段长度)+1.8(小便槽横支管过墙后横支管长度)+0.2(末端带阀门下降段长度)] ×5m=38.2m
③DN32:对GL-1 :0.6(水龙头间距)×5+0.7(GL-1至第一个水龙头的间距)=3.7m
对GL-2:0.6×4+0.7m=3.1m
对GL-3:3.0×2(五层至三层)m=6.0m
共计:(3.7×5+3.1×5+6.0)m=40m
④DN40:对GL-1:[3.0(层高) ×4+1.2(横支管高出楼板长度)+0.9(埋深)+5.2-0.24(两个半墙宽)]m=19.06m
对GL-2:[3.0×4+1.2+0.9]m=14.1m
对GL-3:[3.0×2(三层至一层) +1.2+0.9+5.0(埋地铺设管长度)+0.24]m=13.34m
共计:(19.06+14.1+13.34)m=46.5m
⑤DN50:6.24m(卫生间宽度)-0.24(两个半墙宽度)=6.0m
DN65:[0.24(给水入户管过墙段长度)+2.5(墙外至水表井长度)]m=2.74m
2)给水设备及管件
①水龙头DN20 4×5个=20个
水龙头DN25 12×5个=60个
②自闭式冲洗阀DN20 5×5个=25个
③小便管DN15 2.5m
④蝶阀DN65 2个
截止阀DN50 1个
截止阀DN40 3个
截止阀DN32 2×5个=10个
截止阀DN25 2×5个=10个
截止阀DN20 1×5个=5个
⑤水表DN65 1组
⑥镀锌铁皮套管DN65 1个
镀锌铁皮套管DN50 (5×2+3+1)个=14个
镀锌铁皮套管DN40 2个
镀锌铁皮套管DN32 1×5个=5个
3)防腐
给水管道为镀锌钢管,需要刷油防腐处理,分明装、埋地两部分,明装部分刷银粉两道,埋地部分刷沥青油两道。
明装部分DN20:3.14×0.022×56.5(DN20管的明装部分长度)㎡=3.90㎡
DN25:314×0.027×38.2(DN25管的明装部分长度)㎡=3.24㎡
DN32:3.14×0.034×40㎡=4.27㎡
DN40:3.14×0.042×(13.2+13.2+7.2)(DN40管的明装部分长度)㎡=4.43㎡
共计:(3.9+3.24+4.27+4.43)㎡=15.84㎡
埋地部分DN40:[0.9×3+(5.2-0.24+5)]m×3.14×0.042m=1.67㎡
DN50:6.0m×3.14×0.052m=0.98㎡
DN65:2.74m×3.14×0.067m=0.58㎡
共计:(1.67+0.98+0.58)㎡=3.23㎡
4)支架制作安装
常用管道支架间距表,计算支架工程量
DN20:56.5m/3.0m=19个
DN25:38.2m/3.5m=11个
DN32:40m/4.0m=10个
DN40:(13.2+3.2+7.2)m/4.5m=8个
管道支架DN20 0.49㎏/个×19个=9.31㎏ 刷油重量: 0.28㎏×19=5.32㎏
管道支架DN25 0.6kg/个×11个=6.6㎏ 刷油重量:0.35㎏×11=3.85㎏
管道支架DN32 0.77㎏/个×10个=7.7㎏ 刷油重量: 0.41㎏×10=4.1㎏
管道支架DN40 0.81㎏/ 个×8个=6.48㎏ 刷油重量: 0.45㎏×8=3.6㎏
管道支架安装总计:(9.31+6.6+7.7+6.48)kg=30.09kg
5)土方量
铺设管道开挖管沟土方量为:沟底宽取0.6m,沟深为0.9m。
开挖土方量:V1=h(b+0.3h)l
=[0.9(0.6+0.3×0.9)(5.2-0.24+5.0+6.0+2.74)]m3
=14.64m3
水表井土方量:

如图所示为水表井的平面图,各部尺寸如图所示,0.4m为开挖深度。
开挖土方量:V2=[(1.6+0.48+0.4) ×(1.1+0.48+0.4-0.6) ×0.9] m3
=3.08m3
总开挖土方量:(14.64+3.08)m3=17.72m3
填土方量:(17.72-2.08×1..58×0.9)m3=14.76m3
如图所示为集体卫生间排水系统图,设有3根排水立管。4根铺设管,各段管管径如图所示,PL-1、PL-2管径DN100,PL-3管径DN150,PL-1的铺设管径DN100,PL-2、PL-3的出水埋地铺设管径DN150、出户管DN200、地漏DN50。
(2)排水系统工程量

1)管道
①DN50 :[0.5(盥洗房地漏排出管长度) ×2+0.6(厕所地漏排出管长度)+3.6(厕所洗脸盆排水横支管长度)+0.3(登高)×3] ×5m=[(0.5×2+0.6+3.6+0.3×3) ×5]m=30.5m
②DN75 :对PL-1:4.7m(污水盆排出口至PL-1的横支管长度)+0.6(盥洗槽排出管长度)=5.3m
对PL-2:[2.3(盥洗槽排出口至PL-1的横支管长度)+(0.4+1.3+0.44)(小便槽排出口至PL-2距离)]m=4.44m
总计 :(5.3+4.44)×5m=48.7m
③DN100:{[0.9(PL-1伸顶高度)+3.0×5+1.2(埋深)] ×2+5.2-0.24(两个半墙宽度)-0.2(PL-1、PL-2与墙间隙)(此为PL-1排水铺设管长度)+[5.6(清扫口至蹲便器横支管的长度)+0.3(登高)×5] ×5}m=74.46m
④DN150:[17.1(PL-3的长度)+5.0(PL-3排水埋地铺设管长度)+5.8(PL-2排水管铺设管长度)]m=27.9m
⑤DN200:[0.34(排水出户管过墙段长度)+1.5(墙外段长度)]m=1.84m
2)排水设备及管件
蹲式大便器 5×5套=25套
洗脸盆 3×5组=15组
污水盆 1×5组=5组
伸顶通气帽 3个
地漏 3×5个=15个
清扫口 1×5个=5个
3)排水铺设管挖沟,填沟土方量,沟槽宽度为0.7m。深度为1.2m。
其土方量为:V1=(0.7+0.3×1.2)×1.2×(4.76+5.0+5.8+0.1+1.5)m3
=(1.06×1.2×17.16)m3=21.8m3
另外。一层的排水横支管也需要挖沟铺设,其沟槽宽度定为0.7m,深0.8m。
其土方量:V2=0.7×0.8×[5.6+4.44+4.7-0.4(为污水盆排出管长度)]m3
=0.7×0.8×16.94m3=9.49m3
共计:(21.8+9.49)m3=31.29m3
